Chappel Street Project

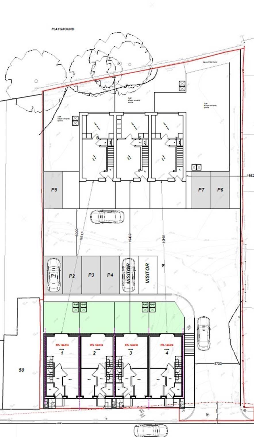
"Revitalizing a former Methodist chapel site, this innovative development transforms a previously underutilized area into a vibrant residential community. The site, once home to a playground and posing safety concerns, will now feature 7 stylish two-bedroom town houses designed to blend seamlessly into the local landscape.

Design and Features

  • Four three-story town houses facing Chapel Street, with discreet lower levels that won't disrupt the street's character.
  • Three town houses nestled in a tranquil courtyard setting, providing a peaceful retreat.
  • Off-road parking for all properties, ensuring safe and convenient access.
  • Electric vehicle charging points powered by renewable energy, supporting a sustainable lifestyle.

Prime Location

  • Within 3 miles of Cheshire and Newcastle, offering easy access to amenities, services, and transportation links.

Sustainable Living

  • Renewable energy powers EV charging points, reducing carbon footprint.
  • Thoughtful design prioritizes energy efficiency and eco-friendliness.

This development offers a unique blend of style, sustainability, and practicality, making it an attractive option for those seeking a comfortable and eco-conscious lifestyle."